

MH型3~20吨电动葫芦门式起重机(箱型式)
MHType3~20tElectricHoistGantryCrane(Boxtype)
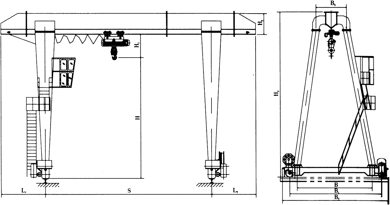
简介ABriefIntroduction
MH型电动葫芦门式起重机与CDMD等型号的电动葫芦配套使用,是一种有轨运行的中小型起重机,其适用起重量3~20吨,适用跨度12~30米,工作环境-20℃~+40℃内。
本产品为一般用途起重机,多用于露天场所及仓库的装卸或抓取物料,本产品有地面操纵和室内操纵两种型式。
MHModelElectricHoistGirderGantryCraneisusedtogetherwithCDMDModelelectrichoists.Itisatracktravellingsmallandmedium-sizedcrane.ItsproperLiftingweightis3to20tons.Properspanis12to30meters,itsproperworkingtemperatureis-20℃to40℃.
Thisproductisaregularcranewidelyusedatopengroundandwarehousestolqad,unloadorgrabmaterials.Ithastwocontrollingmethods,namelyground,controllingandroomcontrolling.





企业传真:0373-8612888
企业邮箱:hzqzj@163.com
地址:河南省长垣县位庄工业区
400-0373-400
扫一扫 关注我们